The residents of Ewhurst are following in the footsteps of their neighbours in “Poor old Alfold”.

Alfold residents have appealed to MP Angela Richardson for help, to no avail; however, she may respond to cries for help from the village where her family resides in Ewhurst? Or, will she turn her back on them too and remain silent for her old Tory colleagues?
WHY? Because the eastern villages and the Surrey Hills are alive with the sound of objections from residents fed up with cement lorries rolling through their rural villages.
Former County Councillors – the Young Duo turn developers?
Former Tory county councillors Victoria & Alan Young want to join other successful developers currently concreting over Ewhurst, and villagers claim they are responding to “greed and not need.”
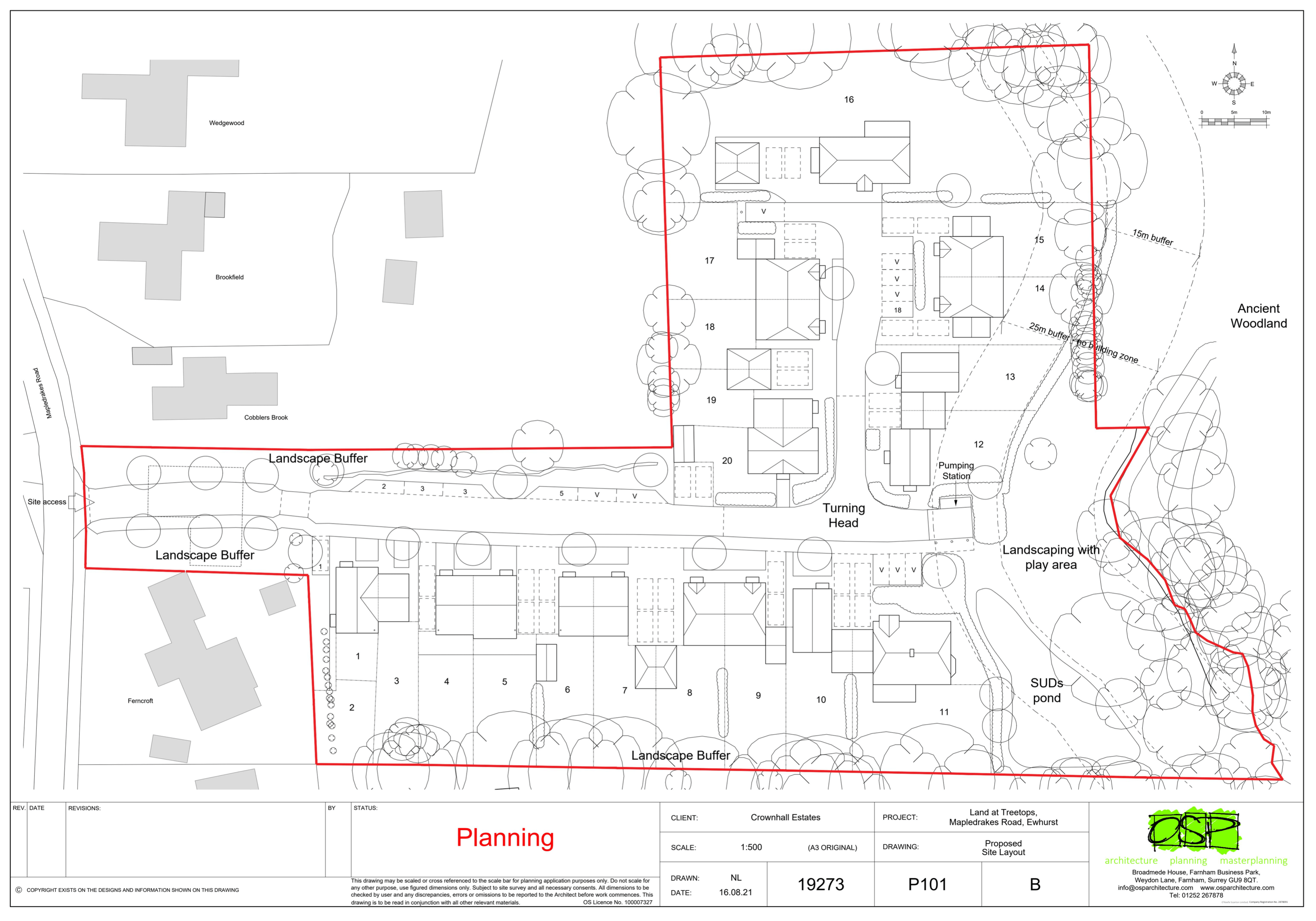
Mr & Mrs Young have submitted an outline planning application to build 20 homes at Tree Tops, Mapledrakes Rd, Ewhurst, following the demolition of an existing dwelling. Not that there are so many treetops there because lots of them, say The Forestry Commission have “illegally” been given the chop!
Letters are pouring into Waverley Borough Council’s planning department objecting to an application by Alan and Victoria Young, both former Surrey County Councillors for Ewhurst and Cranleigh.
Villagers say Ewhurst’s Neighbourhood Plan lays out in great detail (and after an enormous amount of time and input from numerous parties) why certain sites are more or less appropriate for development.
The recent developments in Cherry Tree Lane, Chanrossa and Firethorn Farm will result in a huge increase in traffic, air pollution, and excessive strain on local services and schools, and this development would only add to these problems. The original overall target number of new homes in Ewhurst by 2032 jas already been well exceeded.
This proposed site was not included in the NP and in fact, lies outside the settlement boundary of the village. As Ewhurst has already met and exceeded the quantity of expected development for Waverley council, it seems even more appropriate that the recommendations of the NP should be respected in full.
Others say in their objections on ‘Your Waverley’s ‘ Planning Portal:
We have been inundated with new houses far and above the original plan for Ewhurst.
The houses being allowed are not suitable for the village’s requirements ( i.e. affordable housing for the young and small homes for the elderly). The number of properties being approved is detrimental to the village, with no allowances made for the infrastructure.
All general services such as doctors, dentists, shopping etc. being located in Cranleigh.
“Mapledrakes Road is already over busy with parked cars causing a hazard for local users ( cars parked are not solely the residents). The proposed buildings are not in keeping with the surrounding area. This village is being destroyed through greed and not need.”
You can view dozens of objections here: Waverley Planing Portal – Treetops
Another says:
I strongly object on the following grounds
- Ewhurst is a small village with limited infrastructure that is already buckling under the strain of two large developments currently under construction. These developments have already allocated new properties over the amount required by the Waverley Local Plan.
- The loss of many hundreds of square metres of grassland and woodland to concrete, tarmac and non-porous surfaces will lead to surface runoff into the ancient woodland, and cobblers brook watercourse will result in further damage to wildlife and create an unnecessary flooding risk on the steeply graded site, that not all drainage will capture.
- Increased traffic on a quiet residential road. Not only will the increased traffic from residents contribute to damage and traffic for Mapledrakes road and the Glebe (The Glebe recently had pavement repairs due to HGV damage as it is not suitable) but also the 8 wheeled HGV’s needed for soil removal and deliveries driving up and down to the site will further destroy the village, especially as both Glebe and Mapledrakes entrances are virtually single-lane access due to parked cars, not to mention the constructions workers vehicles which have already obliterated the footpath on other developments on the Green in Ewhurst.
- . Light pollution from new houses in the proposed new development which will again change forever the quiet Village ambience of the darkness that makes a village a special place to live, adding this light pollution so near to woodland and an AONB is further proof that profits of developers mean more than the feelings of local communities.
Felling of ancient woodland and allegedly breaching Forestry Commissions act 1967 should itself be indicative of the lengths developers will go to in order to circumvent plans and push their developments through. Not only is the site unsuitable for this type and size of development it would destabilise the delicate eco structure of the woodland it is adjacent too and should be rejected in its entirety. I could go on but the dozens of objections expressed by residents and official bodies should give you a feeling that this development IS NOT NEEDED!!!


Surely the current County Councillor for Ewhurst will get Highways to object on traffic issues and she is the most valuable elected official in this case. Not sure what the MP can do in planning matters – but I could be wrong. As a side issue, are either our MP or Surrey County Councillors offering to accommodate Ukrainian refugees?
Perhaps some either haven’t heard or listened to Boris Johnson’s recognition of the “failed economic model.” Even good design is Government policy.
He said: “By unleashing talent everywhere you stop the overheating and the stress and the overdevelopment, that is a part of the failed economic model, and we take the whole country forward together.”
This follows Johnson last October saying new homes should not be built on green fields “jammed in the south east” but should instead be built on brownfield sites ‘where homes make sense’.
The comments have been seen as a key factor, along with housing secretary Michael Gove’s review of planning policy, behind several councils in the home counties deciding to ditch or halt their local plans. Hertsmere and Welwyn & Hatfield councils both voted against their own local plans, citing changing government policy, while Mid Sussex council has also paused its local plan.